Radial apartment: современная квартира в ЖК «Парус» для молодой пары

Radial apartment в ЖК Парус

Сергей Купреенко

Дизайнер

  • Расположение Минск
  • Площадь 83 м2
  • Стиль Минимализм
  • Фотограф Елизавета Кулененок
  • В жилом комплексе «Парус», одном из самых выразительных архитектурных объектов Минска, расположилась квартира площадью 83 кв. м, созданная для молодой пары из сферы IT и маркетинга. Дом с витражным остеклением по всему периметру и радиальной планировкой словно расправил стеклянный парус — отсюда и название.

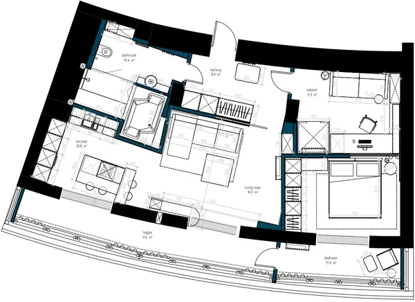
    Обмерный план и план расстановки мебели

    Пара работает удаленно, а значит, квартира должна была стать одновременно домом, офисом, студией и местом отдыха. Несмотря на компактные размеры, функционал жилья стремится к возможностям небольшого дома.

    Планировка трапециевидной формы диктует необычное распределение зон. Вдоль фасадного остекления разместились кухня, гостиная и спальня — все они купаются в естественном свете.

    Radial apartment в ЖК «Парус»
    Radial apartment в ЖК «Парус»

    Кухня — монохромная, с матовыми черными фасадами и островом, вокруг которого легко собирается компания из восьми человек. Темный мрамор, встроенная техника, отражения городского пейзажа — всё работает на атмосферу урбанистического уюта.

    Radial apartment в ЖК «Парус»
    Radial apartment в ЖК «Парус»

    Гостиная — это не просто диван и стол. Здесь спрятан домашний кинотеатр с экраном 3,5 метра, биокамин с функцией увлажнения воздуха и мебельная композиция, в которой каждый элемент — функционален. Вечером пространство преображается: подсветка камина отражается от белых поверхностей, создавая игру теней и цвета.

    Radial apartment в ЖК «Парус»
    Radial apartment в ЖК «Парус»

    Спальня — с видом на город, с мягким текстилем и темными акцентами. За стеклянной перегородкой со смарт-стеклом — кабинет. Здесь работают, играют на музыкальных инструментах и записывают звук. Несмотря на отсутствие окон, пространство наполнено светом благодаря прозрачной грани со спальней.

    Radial apartment в ЖК «Парус»
    Radial apartment в ЖК «Парус»
    Radial apartment в ЖК «Парус»

    Прихожая объединяет хранение, технический блок и мини-прачечную. Все скрыто в едином объеме шкафа, визуально продолжающего перегородку между зонами.

    Radial apartment в ЖК «Парус»
    Radial apartment в ЖК «Парус»

    Ванная — это отдельная глава. На 10 кв. м разместились двухместная ванна, душевая и полноценный хамам. Парная стала вызовом: ее объем, оборудование и изоляция были рассчитаны до миллиметра. Стеклянные перегородки позволяют трансформировать пространство, создавая буфер между зонами.

    Radial apartment в ЖК «Парус»
    Radial apartment в ЖК «Парус»
    Radial apartment в ЖК «Парус»
    Radial apartment в ЖК «Парус»

    Интерьер построен на контрасте: черные объемы, белые стены, текстура американского ореха и камня. Зеркала размывают геометрию, а синие акценты добавляют глубины. Все работает на атмосферу — от подвесных светильников до отражений в стекле.