Белый дом у леса и озера для активной пары

Белый дом у леса и озера
Дизайнер Алла Соловьева

Алла Соловьева

Дизайнер

  • Расположение Минск
  • Площадь 411 м2
  • Стиль Контемпорари
  • Фотограф Егор Пясковский
  • Заказчики — умные, образованные, активные люди, приверженцы здорового образа жизни и экологичного подхода. Родом из Минска, они долгое время жили и работали в Москве и Европе, а затем решили вернуться на родину.

    На живописном участке у озера и леса уже стояла коробка двухэтажного дома с мансардой и цокольным этажом — без отделки, но с потенциалом. Их пожелание было лаконичным и выразительным: максимально белый дом, минимум мебели, максимум света и воздуха.

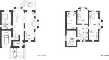
    План дома у леса и озера

    Планировка дома была достаточно продуманной, поэтому изменения оказались точечными: на первом этаже пробили проём для входа на кухню и добавили окно в гостиной — с видом на озеро. Фронтон мансарды заменили на остекление, открыв панораму водной глади.

    Белый дом у леса и озера
    Белый дом у леса и озера

    Главная задача при проектировании — создать функциональное, комфортное пространство, отражающее вкусы и стиль его обитателей. Интерьер здесь — как одежда, сшитая на заказ: из натуральной ткани, приятной к телу, с деталями по вкусу.

    Экологичность и натуральность материалов стали ключевыми критериями. Все решения принимались коллективно: если кто-то из семьи был против — искали альтернативу. Но неизменным оставалось одно — экологичность.

    Пол во всём доме, кроме кухни — Coswick. Почти все стены, за исключением спален, окрашены краской Manders (Little Green).

    Белый дом у леса и озера
    Белый дом у леса и озера

    Некоторые идеи родились в процессе. Оставшуюся плитку сложного цвета озерной глади использовали для обрамления зеркала в ванной хозяйки и камина в гостиной. Изначально задумывался белый интерьер, но озеро с его оттенками — от бирюзы до глубокого синего — проникло внутрь. А закаты и рассветы добавили розовых и алых акцентов.

    Белый дом у леса и озера

    В гостиной появился необычный элемент — подвесное кресло Schwebeliege, или «ангельские качели». В нем можно качаться, глядя на облака или огонь в камине. Рядом — кресло Knoll Womb дизайнера Ээро Сааринена и столик Plater.

    Белый дом у леса и озера
    Белый дом у леса и озера

    Часть мебели — семейная, с историей. Ретро-буфет в гостиной и дубовый шкаф в спальне были бережно обновлены, с добавлением выразительной фурнитуры. А некоторые предметы преобразили смело и с иронией: резной дубовый шкаф в прихожей покрасили в глубокий синий, а внутри — ярко-желтая отделка, контрастирующая с серыми стенами. Шкаф 60-х годов стал пастельно-розовым и превратился в украшение спальни.

    Белый дом у леса и озера
    Белый дом у леса и озера
    Белый дом у леса и озера
    Белый дом у леса и озера
    Белый дом у леса и озера

    В одной из поездок хозяйка приобрела старинные декоративные элементы, напоминающие крылья. Они стали изюминкой — украсили спинку кровати, изготовленной на заказ.

    Белый дом у леса и озера
    Белый дом у леса и озера

    В комнате взрослой дочери переплелись современные элементы мебели с раритетными семейными предметами.

    Белый дом у леса и озера
    Белый дом у леса и озера

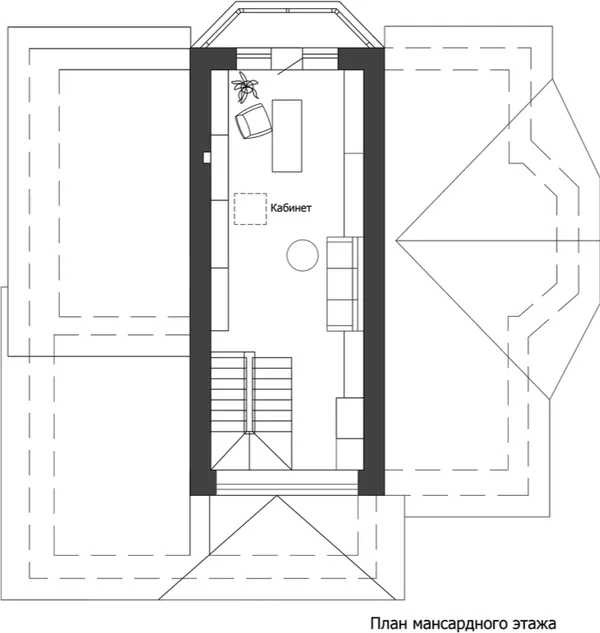
    Одним из плюсов стало то, что дом строился по готовому проекту и имел логичную, продуманную планировку. Однако был и существенный недостаток: на мансардном этаже со стороны озера располагался глухой фронтон, а освещение обеспечивали лишь небольшие мансардные окна.

    Чтобы раскрыть потенциал участка, стену демонтировали, а часть крыши над эркером разобрали. На месте прежнего фронтона появилось панорамное остекление, открывающее живописный вид на озеро. Перекрытие эркера превратилось в балкон с прозрачным ограждением — для максимального обзора и ощущения открытости.

    Изначально фасады были белыми и нейтральными, с классическими эркерами — спокойно, но без характера. В процессе проектирования решили добавить цвет и фактуру: главный фасад и эркеры облицевали морозостойкой плиткой цвета озерной воды.

    План мансардного этажа дома у леса и озера
    Белый дом у леса и озера
    Белый дом у леса и озера

    Весь процесс создания интерьера напоминал увлекательный квест: с аскетизмом, рациональным потреблением и тщательным взвешиванием необходимости каждого элемента.